大家さんの直接募集だから仲介手数料無料です

坂戸市西坂戸一戸建て(埼玉県坂戸市)

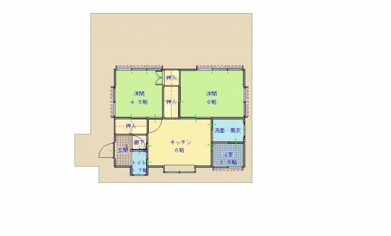
賃料:40,000円(管理費:0円) 敷金/礼金:敷金1ヶ月/礼金0 間取り:2DK(40.85m2

  • ペット相談可
  • 初期費用10万円以下
  • map
  • このお部屋は現在
    募集中

※ 写真に関しては現況優先となります

間取図を見る

この物件への内見・お問い合わせはこちら(無料の会員登録が必要です)

賃料 40,000円 管理費 0円 敷礼保 敷金1ヶ月 / 礼金0ヶ月 / 保証金0ヶ月
所在地 〒3500247 埼玉県坂戸市西坂戸4-22-7  map
間取り 2DK 間取図を見る 専有面積 40.85m2 築年月 1974年7月築 建物構造 戸建/木造
交通 東武越生線川角駅 徒歩36分
入居可能時期 即入居可
初期費用
概算
0~10万円
※上記費用はあくまで概算になります。別途、入居日からの日割り家賃がかかる場合があります。

この物件の大家さん

大家さんからの物件ポイント

生活しやすい平屋一戸建て!
坂戸市は、都心へのアクセスも自然環境のバランスが良い

住みやすい郊外都市です!

DIYもオッケーなので、自身で住みやすい環境を!

この物件への内見・お問い合わせはこちら(無料の会員登録が必要です)

坂戸市西坂戸一戸建て の賃貸物件詳細情報

坂戸市西坂戸一戸建て の設備や条件など詳しい概要です

契約種別 普通借家契約
建物構造 戸建/木造
築年月 1974年7月築
所在階 / 階数 地上1階 建
駐車場 駐車場なし
バイク置き場 バイク置き場なし
駐輪場 駐輪場なし
位置 1階の物件 / 角部屋
条件 DIY可 / 2人入居可 / ペット相談可
バス・トイレ・洗面 バス・トイレ別 / 追い焚き
部屋設備・サービス 室内洗濯機置場

 更新日:2026/04/27

この物件への内見・お問い合わせはこちら(無料の会員登録が必要です)

この物件の近隣の施設情報

学校
かぴら幼稚園
直線距離:約349m
〒350-0247 埼玉県坂戸市西坂戸3丁目30−1
スーパー
全日食チェーン 西坂戸店
直線距離:約321m
〒350-0247 埼玉県坂戸市西坂戸3丁目7−1
学校
城山好学館
直線距離:約353m
〒350-0247 埼玉県坂戸市西坂戸3丁目6−16

ウチコミ!