大家さんの直接募集だから仲介手数料無料です

魚津市大光寺倉庫(富山県魚津市)

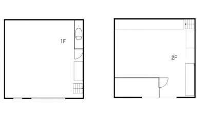
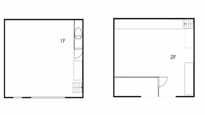
賃料:50,000円(管理費:0円) 敷金/礼金:敷金1ヶ月/礼金0 間取り:2LDK(92.00m2

  • 初期費用10万円以下
  • map
  • このお部屋は現在
    募集終了

※ 写真に関しては現況優先となります

間取図を見る

この物件への内見・お問い合わせはこちら(無料の会員登録が必要です)

賃料 50,000円 管理費 0円 敷礼保 敷金1ヶ月 / 礼金0ヶ月 / 保証金0ヶ月
消費税 事務所・店舗でご利用になる場合、別途消費税5,000円が発生します。
所在地 〒9370807 富山県魚津市大光寺365  map
間取り 2LDK 間取図を見る 専有面積 92.00m2 築年月 1987年5月築 建物構造 工場・倉庫/木造
交通 富山地鉄本線電鉄魚津駅 徒歩17分
入居可能時期 即入居可
初期費用
概算
0~10万円
※上記費用はあくまで概算になります。別途、入居日からの日割り家賃がかかる場合があります。

この物件の大家さん

大家さんからの物件ポイント

駐車5台可、店舗、工場、事務所、倉庫用途
建築関係、板金、車屋さんの方向けの倉庫や工場に向きます。
内部もリフォーム済みで綺麗です。
8号線すぐ側でアクセス良好です。

この物件への内見・お問い合わせはこちら(無料の会員登録が必要です)

魚津市大光寺倉庫 の賃貸物件詳細情報

魚津市大光寺倉庫 の設備や条件など詳しい概要です

契約種別 普通借家契約
建物構造 工場・倉庫/木造
築年月 1987年5月築
所在階 / 階数 地上2階 建
駐車場 駐車場あり(空きあり)
バイク置き場 バイク置き場あり(空きあり)
駐輪場 駐輪場あり(空きあり)
用途 工場・倉庫
建物設備 駐車場2台可能
位置 最上階 / 南向き

 更新日:2026/01/20

この物件への内見・お問い合わせはこちら(無料の会員登録が必要です)

この物件の近隣の施設情報

病院
魚津緑ヶ丘病院
直線距離:約326m
〒937-0807 富山県魚津市大光寺287
コンビニ
セブン-イレブン 魚津大光寺店
直線距離:約223m
〒937-0807 富山県魚津市大光寺1354
薬局
チューリップ調剤 チューリップらいと薬局
直線距離:約289m
〒937-0807 富山県魚津市大光寺275−13
病院
魚津緑ヶ丘病院にいかわ認知症疾患医療センター
直線距離:約292m
〒937-0807 富山県魚津市大光寺287

ウチコミ!