大家さんの直接募集だから仲介手数料無料です

吉見町 日本家屋一戸建(埼玉県比企郡吉見町)

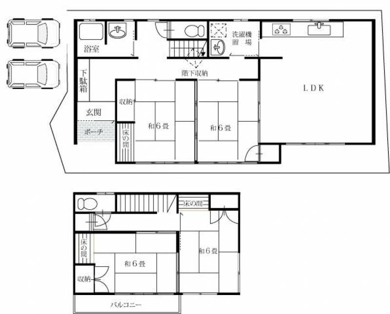
賃料:78,000円(管理費:0円) 敷金/礼金:敷金0/礼金0 間取り:4LDK(106.83m2

  • ペット相談可
  • フリーレント
  • 初期費用分割可
  • 初期費用10万円以下
  • map
  • このお部屋は現在
    募集中

※ 写真に関しては現況優先となります

間取図を見る

この物件への内見・お問い合わせはこちら(無料の会員登録が必要です)

賃料 78,000円 管理費 0円 敷礼保 敷金0ヶ月 / 礼金0ヶ月 / 保証金0ヶ月
所在地 〒3550156 埼玉県比企郡吉見町長谷1567-83  map
間取り 4LDK 間取図を見る 専有面積 106.83m2 築年月 1992年4月築 建物構造 戸建/木造
交通 東武東上線東松山駅 徒歩49分
入居可能時期 2026年06月中旬
初期費用
概算
0~10万円
※上記費用はあくまで概算になります。別途、入居日からの日割り家賃がかかる場合があります。
ウチコミ!特典
フリーレント付き!

この物件の大家さん

大家さんからの物件ポイント

吉見町 日本家屋一戸建、 東武東上線「東松山」距離4,500m、 広さ106.83㎡、敷金0礼金0、 4LDK戸建の募集です。
吉見町 日本家屋一戸建号室のご案内です。
・ファミリーに最適!
・駐車場3台、ペット可!


---賃貸条件---
賃料:78,000円
管理費:賃料込
敷金:0ヵ月/礼金:0ヵ月
契約期間:2年
クリーニング費用:110,000円(税込)※契約時前払い
家財保険:20,000円/2年毎更新 ※加入必須
あんしんコール24:19,800円(税込)/2年毎更新 ※加入必須
鍵交換費用:27,500円(税込) ~ ※任意
除菌消臭サポート:16,500円(税込) ~ ※任意
更新料:新賃料・管理費合計額の1ヵ月分
更新事務手数料:新賃料・管理費合計額の0.5ヵ月分(+10%税)

---住所---
〒355-0156 埼玉県比企郡吉見町長谷1567-83

---交通---
東武東上線 東松山 距離4,500m

---建物---
間取:4LDK
専有面積:106.83㎡
築年月:1992年04月
向き:-
構造:木造瓦葺き 2階建て
現況:2026年4月退去予定
入居可能予定日:2026年6月中旬以降
駐車場:賃料込


---設備条件---
公営水道、東京電力、個別プロパン、個別浄化槽、駐車場2台、LDKフローリング、キッチンに窓、システムキッチン、ガスコンロ三口、追い焚き機能付浴室、独立洗面台

---備 考---
①保証会社利用必須(2年未満解約の場合は家賃1~3ヵ月相当の違約金が発生する場合がございます。クリーニング費用は契約時償却となります。)
②法人様契約又はペット飼育可能物件にてペット飼育の場合は賃料、管理費合計での礼金2ヵ月増となります。
③外国籍の方もご入居可能です(※条件変更有り)。

---※各保証会社初回保証料---
1.エルズサポート㈱
 総額家賃50%~(最低保証料2万円)
2.㈱オリコフォレントインシュア
 総額家賃50%~(最低保証料2万円)
3.全保連㈱
 総額家賃50%~(最低保証料2万円)
4.㈱グローバルトラストネットワークス
 総額家賃70%~(最低保証料2万円)
5.㈱アドヴェント
 総額家賃50%~(最低保証料2万5千円)

敷金0礼金0、無理なく快適にご入居いただけます。
また、弊社からの直接の募集なので仲介手数料がかかりません。

お問い合わせお待ちしております。
※弊社の営業日は平日9時から17時のため、それ以外のお時間のお問い合わせに対しては、ご返信が遅くなります。

この物件への内見・お問い合わせはこちら(無料の会員登録が必要です)

吉見町 日本家屋一戸建 の賃貸物件詳細情報

吉見町 日本家屋一戸建 の設備や条件など詳しい概要です

契約種別 普通借家契約
建物構造 戸建/木造
築年月 1992年4月築
所在階 / 階数 地上2階 建
駐車場 駐車場あり(空きあり)
バイク置き場 バイク置き場なし
駐輪場 駐輪場なし
条件 ペット相談可 / ファミリー向け
キッチン ガスコンロ付き / コンロ2口以上 / システムキッチン
バス・トイレ・洗面 バス・トイレ別 / 追い焚き / 独立洗面台
部屋設備・サービス クローゼット / プロパンガス / フローリング / 専用庭 / 室内洗濯機置場

 更新日:2026/04/01

この物件への内見・お問い合わせはこちら(無料の会員登録が必要です)

ウチコミ!