大家さんの直接募集だから仲介手数料無料です

白石戸建(宮城県白石市)

賃料:48,000円(管理費:2,000円) 敷金/礼金:敷金0/礼金1ヶ月 間取り:2LDK(98.00m2

  • ペット相談可
  • フリーレント
  • 家具・家電付き
  • map
  • このお部屋は現在
    募集中
  • リビングルームをバーチャルステージングしました。
  • キッチンをバーチャルステージングしました。
  • 2階の和室をバーチャルステージングじました。
  • 奥の洋室を子供部屋にしました。
  • リビングルームをバーチャルステージングしました。
  • 二階の和室

※ 写真に関しては現況優先となります

リビングルームをバーチャルステージングしました。 キッチンをバーチャルステージングしました。 2階の和室をバーチャルステージングじました。 奥の洋室を子供部屋にしました。 リビングルームをバーチャルステージングしました。 二階の和室

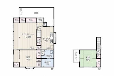
間取図を見る

この物件への内見・お問い合わせはこちら(無料の会員登録が必要です)

賃料 48,000円 管理費 2,000円 敷礼保 敷金0ヶ月 / 礼金1ヶ月 / 保証金0円
消費税 事務所・店舗でご利用になる場合、別途消費税5,000円が発生します。
所在地 〒9890232 宮城県白石市福岡長袋壱里壇3-10  map
間取り 2LDK 間取図を見る 専有面積 98.00m2 築年月 1957年3月築 建物構造 戸建/木造
交通 JR東北本線(黒磯~利府・盛岡)東白石駅 徒歩50分
JR東北本線(黒磯~利府・盛岡)白石駅 徒歩45分
入居可能時期 即入居可
初期費用
概算
10万円~20万円
※上記費用はあくまで概算になります。別途、入居日からの日割り家賃がかかる場合があります。
ウチコミ!特典
フリーレント1ヵ月付き!

この物件の大家さん

プロフィール

大家さんからの物件ポイント

電動シャッター付ガレージハウス、お洒落なカフェ風にリフォーム済、家電付き
【ペット2匹まで可/広々98㎡/シャッター付ガレージ/インター近くの便利立地】
ヴィラ白石は、ペットと暮らすファミリー、大切なバイクを安心して保管したいバイカーの方、そして落ち着いた戸建てを求めるグループホーム契約者様にも幅広く選ばれている物件です。

2021年に内装をすべてカフェ風フルリノベーション。水回り・床・壁・設備まですべて新設。
清潔で温かみのある空間に仕上げました。
広々98㎡のゆとりある間取りは、ファミリーや複数名での利用にも最適です。

最大の魅力は、屋根付き×自動シャッター付きガレージ。
車1台+軽自動車1台、または大型バイクの駐車が可能。雨・風・盗難からしっかり守れるため、ツーリングを楽しむバイカーさんから特に人気があります。

ペットは2匹まで相談OK(1匹につき礼金1ヶ月)。近くには散歩しやすい道が多く、生活環境も良好。徒歩圏内にドラッグストア、スーパー、コンビニ、酒屋「やまや」、道の駅があり、買い物に困りません。さらに、車で数分の温泉施設では、休日にゆっくりリフレッシュできます。

間取りは、
● 1階:リビング13畳・キッチン7畳・洋室8畳
● 2階:和室8畳
広い敷地56坪で、ゆとりある暮らしが叶います。

設備も充実しています。
・テレビ付きインターフォン
・追い焚き付きユニットバス
・温水洗浄付き便座
・3口ガスコンロキッチン
・シャンプードレッサー付き洗面台

生活動線の良さ、収納力、清潔感、広さ、とても「住みやすい家」に仕上がっています。

4号線沿い&インター入口すぐの立地で、仕事・送迎・レジャーの移動もスムーズ。グループホームや多人数での利用にも適した間取りと広さです。

入居はいつでも可能。
ぜひ一度ご覧ください。写真以上に“住みやすさ”を実感していただけます。

この物件への内見・お問い合わせはこちら(無料の会員登録が必要です)

白石戸建 の賃貸物件詳細情報

白石戸建 の設備や条件など詳しい概要です

契約種別 普通借家契約
建物構造 戸建/木造
築年月 1957年3月築
所在階 / 階数 地上2階 建
駐車場 駐車場あり(空きあり)
バイク置き場 バイク置き場あり(空きあり)
駐輪場 駐輪場あり(空きあり)
用途 事務所・店舗可
建物設備 駐車場2台可能
位置 2階以上 / 角部屋 / 南向き
条件 DIY可 / 2人入居可 / ペット相談可 / 保証人不要 / ファミリー向け
キッチン ガスコンロ付き / コンロ2口以上 / システムキッチン
バス・トイレ・洗面 バス・トイレ別 / ユニットバス / 追い焚き / 温水洗浄便座 / 独立洗面台
冷暖房 エアコン
部屋設備・サービス 照明器具付き / 二面採光 / TVモニタ付インターホン / 専用庭 / フローリング / バルコニー / 室内洗濯機置場
放送・通信 CSアンテナ / BSアンテナ
その他 リフォーム・リノベーション済 / 家具・家電付

 更新日:2026/02/20

この物件への内見・お問い合わせはこちら(無料の会員登録が必要です)

この物件の近隣の施設情報

スーパー
おもしろいし市場
直線距離:約335m
〒989-0232 宮城県白石市福岡長袋八斗蒔20−1
コンビニ
ファミリーマート 白石インター店
直線距離:約391m
〒989-0731 宮城県白石市福岡深谷地蔵堂62

ウチコミ!