大家さんの直接募集だから仲介手数料無料です

GranLoungeAkagi103(福島県郡山市)

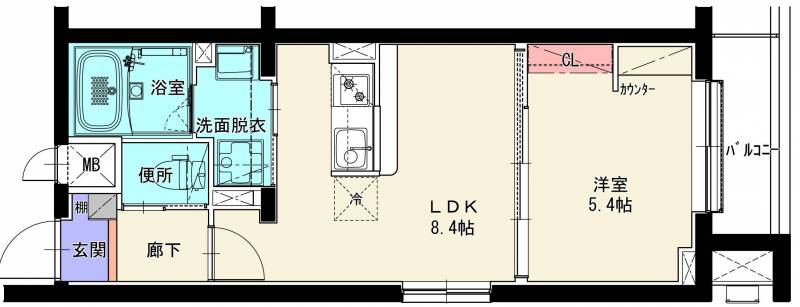
賃料:79,900円(管理費:6,000円) 敷金/礼金:敷金1ヶ月/礼金1ヶ月 間取り:1LDK(31.84m2

  • 初期費用分割可
  • インターネット無料
  • セキュリティ
  • map
  • このお部屋は現在
    募集中

※ 写真に関しては現況優先となります

間取図を見る

この物件への内見・お問い合わせはこちら(無料の会員登録が必要です)

賃料 79,900円 管理費 6,000円 敷礼保 敷金1ヶ月 / 礼金1ヶ月 / 保証金0ヶ月
消費税 事務所・店舗でご利用になる場合、別途消費税8,590円が発生します。
所在地 〒9638006 福島県郡山市赤木町26-8  map
間取り 1LDK 間取図を見る 専有面積 31.84m2 築年月 2023年3月築 建物構造 マンション/鉄筋コンクリート造
交通 JR東北本線(黒磯~利府・盛岡)郡山駅 徒歩12分
JR東北本線(黒磯~利府・盛岡)郡山駅 バス7分 バス停下車 徒歩3分
入居可能時期 即入居可
初期費用
概算
20万円~
※上記費用はあくまで概算になります。別途、入居日からの日割り家賃がかかる場合があります。
ウチコミ!特典
インターネット無料!

この物件の大家さん

プロフィール

大家さんからの物件ポイント

初期費分割保証人0高齢夜職可☆駅近築浅RCマンション☆ホテルライク仕様の防音配慮全戸角部屋☆
郡山駅徒歩12分!
駅前商圏へも徒歩数分で最寄りコンビニは徒歩4分と交通至便な立地。

昨今気になる防音・セキュリティ対策にも充分配慮した
全戸角部屋・外階段無し内廊下のホテルライク仕様。

1LDK 31.84 ㎡+ベランダ 2.77 ㎡
1階 南西角

●インターネット無料!

●24時間ゴミ出し可能

●生活を支える快適設備♪
・モニタホン付きオートロック
・宅配BOX
・ズバ暖エアコン
・専用ガス乾燥機
・対面キッチンカウンター
・2口ガスコンロ
・ワークスペース
・ウォークインクロゼット
・エレベーター
・バストイレ別
・追焚き機能
・温水洗浄便座
・浴室乾燥機
・室内物干し
・室内洗濯機置場
・玄関人感ライト/ダウンライト完備
・一部照明器具付き
・ベランダ
・バイク置場(月2,200円)
・自転車置場(1人2台目以降1台につき月100円)
・場内防犯カメラ
・屋外トランクルーム(1,100 円)

●周辺施設
郡山市立赤木小学校 徒歩2分
郡山市立郡山第二中学校 徒歩15分
セブンイレブン郡山大町2丁目店 徒歩4分
シミズストア咲田店 徒歩10分
郡山駅 徒歩12分

〇駐車場(希望者のみ)
敷地外 徒歩1分 4,950円
※敷地内(9,900円)希望者は事前予約にて空き次第提供可

〇駐輪場
1人2台目以降から1台につき110円

〇保証会社の利用を入居条件と致します。
貸主側で審査申請 日本賃貸保証 他
初回料総家賃の5-10割+月額0-1.5%や年更新料

〇火災保険の利用を入居条件と致します。
24h駆け付け特約・借家人賠償付 23,100円/2年
事業用は別途指定有

〇定額清掃料
55,000円税込
(法人契約時敷金振替可)

〇事業利用
敷金1ヶ月追加+別途消費税

〇早期解約違約金
1年未満で家賃1ヶ月分、半年未満で家賃2ヶ月分

※礼金追加・駐車場代増額による法人規定限度内に合わせる為の賃料減額や駐車場代・固定水道代・物置代賃料込設定対応可

この物件への内見・お問い合わせはこちら(無料の会員登録が必要です)

GranLoungeAkagi 103の賃貸物件詳細情報

GranLoungeAkagi 103の設備や条件など詳しい概要です

契約種別 普通借家契約
建物構造 マンション/鉄筋コンクリート造
築年月 2023年3月築
所在階 / 階数 1階/ 地上5階 建
駐車場 駐車場あり(空きあり)9,900円/月
バイク置き場 バイク置き場あり(空きあり)2,200円/月
駐輪場 駐輪場あり(空きあり)
用途 事務所可
セキュリティ オートロック / 防犯カメラ / エレベーター / 宅配ボックス
建物設備 24時間ごみ出し可 / 駐車場2台可能
位置 1階の物件 / 角部屋 / 南向き
条件 2人入居可 / 高齢者歓迎 / ファミリー向け
キッチン ガスコンロ付き / コンロ2口以上 / システムキッチン / カウンターキッチン
バス・トイレ・洗面 バス・トイレ別 / ユニットバス / 追い焚き / 温水洗浄便座 / 浴室乾燥機 / 独立洗面台
冷暖房 エアコン
部屋設備・サービス シューズボックス / クローゼット / TVモニタ付インターホン / プロパンガス / バルコニー / 室内洗濯機置場 / 防音
その他 ウォークインクローゼット / デザイナーズ

 更新日:2026/04/24

この物件への内見・お問い合わせはこちら(無料の会員登録が必要です)

GranLoungeAkagiの103以外の部屋を見る

部屋 賃料 管理費 敷/礼 間取り  
503 募集終了
  • ペット相談可
  • フリーレント
  • 初期費用分割可
  • 壁紙プレゼント
  • インターネット無料
  • 駅近
  • 初期費用10万円以下
  • 楽器相談
  • セキュリティ
  • 家具・家電付き
  • 狭小物件
  • 特典
  • 動画
79,900円 6,000円 1ヶ月/1ヶ月 1LDK (31.84m2 詳細を見る

この物件の近隣の施設情報

学校
郡山学院 高等専修学校 本校舎
直線距離:約397m
〒963-8005 福島県郡山市清水台2丁目11−8
薬局
赤木調剤薬局
直線距離:約344m
〒963-8006 福島県郡山市赤木町13−2
コンビニ
セブン-イレブン 郡山大町2丁目店
直線距離:約122m
〒963-8001 福島県郡山市大町2丁目4−1
病院
大町キッズベース
直線距離:約253m
〒963-8001 福島県郡山市大町2丁目3−26
薬局
山口薬局 大町店
直線距離:約322m
〒963-8001 福島県郡山市大町2丁目15−2
学校
郡山市立赤木小学校
直線距離:約166m
〒963-8006 福島県郡山市赤木町7−41
学校
FRONTIER AND ESTATE
直線距離:約371m
〒963-8001 福島県郡山市大町1丁目14−11
薬局
ハート調剤(有)
直線距離:約324m
〒963-8001 福島県郡山市大町2丁目15−2
学校
アーベントロートピアノ教室
直線距離:約401m
〒9698001 福島県郡山市大町2丁目16−2

ウチコミ!