大家さんの直接募集だから仲介手数料無料です

辰野平出の家(長野県上伊那郡辰野町)

賃料:73,000円(管理費:0円) 敷金/礼金:敷金0/礼金0 間取り:3SLDK(117.60m2

  • ペット相談可
  • 初期費用10万円以下
  • map
  • このお部屋は現在
    募集中

※ 写真に関しては現況優先となります

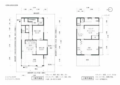
間取図を見る

この物件への内見・お問い合わせはこちら(無料の会員登録が必要です)

賃料 73,000円 管理費 0円 敷礼保 敷金0ヶ月 / 礼金0ヶ月 / 保証金0ヶ月
所在地 〒3990422 長野県上伊那郡辰野町平出1295-3  map
間取り 3SLDK 間取図を見る 専有面積 117.60m2 築年月 2004年7月築 建物構造 戸建/鉄骨造
交通 JR中央本線(東京~塩尻)辰野駅 徒歩10分
入居可能時期 即入居可
初期費用
概算
0~10万円
※上記費用はあくまで概算になります。別途、入居日からの日割り家賃がかかる場合があります。

この物件の大家さん

大家さんからの物件ポイント

駅、IC、スーパー、学校に近い、便利な立地。築浅で複層ガラス完備なので、寒い長野県でも安心です。
2004年新築で今年2022年にリフォーム済みの、とても綺麗な物件です。
駅やICから近く、車や徒歩での移動に便利。
保育園から高校まで、全て徒歩圏内なので子育て世帯にも暮らしやすい立地です。
もともと1階部分をお好み屋さんとして利用していたので、店舗利用したい方にも設備は充実してます。
改修やDIYも内容次第で可能です。
店舗利用のお家賃は80,000円になります。

敷地内に駐車場は2台(普通1台、軽1台)駐車できます。
外壁窓は全て複層ガラス、エアコン付き(残置物 動作確認済)のお部屋もあり長野県の寒い気候でも暮らしやすい物件です。
お風呂は追い炊き、トイレは暖房便座です。

2026年2月からご入居可能。

ご入居条件がありますので、下記をご確認下さい。
・保障会社への加入は必須です。
・家財保険にご加入下さい。(大家から会社の指定はございません)
・退去時のクリーニング費用 8万円
店舗利用:実費
・店舗利用のご入居者様のみ敷金2ヶ月をお預かりさせて頂きます。
・1年未満の短期ご契約は受け付けておりません。
1年未満の途中ご解約の際は、ご契約日から1年分のお家賃よりお支払い頂いているお家賃を差し引いた差額を違約金としてお支払い頂きます。
その他は、掲載写真の物件概要をご確認下さい。
画像で確認しにく際はPDFデータを送付いたしますので、ご連絡いただければと存じます。

※先着順で契約を受け付けております。
 仮予約等は受け付けておりませんので、ご了承下さい。

#辰野 #伊那 #岡谷 #田舎暮らし #移住 #戸建て #DIY #地方 #長野県 #眺めのよい

この物件への内見・お問い合わせはこちら(無料の会員登録が必要です)

辰野平出の家 の賃貸物件詳細情報

辰野平出の家 の設備や条件など詳しい概要です

契約種別 普通借家契約
建物構造 戸建/鉄骨造
築年月 2004年7月築
所在階 / 階数 地上2階 建
駐車場 駐車場あり(空きあり)
バイク置き場 バイク置き場あり(空きあり)
駐輪場 駐輪場あり(空きあり)
用途 事務所・店舗可
条件 ペット相談可
キッチン ガスコンロ設置可 / コンロ2口以上
バス・トイレ・洗面 バス・トイレ別 / 追い焚き / 独立洗面台
冷暖房 エアコン
部屋設備・サービス フローリング / 専用庭 / バルコニー / 室内洗濯機置場
その他 ウォークインクローゼット / リフォーム・リノベーション済 / デザイナーズ

 更新日:2026/01/30

この物件への内見・お問い合わせはこちら(無料の会員登録が必要です)

この物件の近隣の施設情報

コンビニ
セブンイレブン 辰野平出店
直線距離:約144m
〒399-0422 長野県上伊那郡辰野町平出1596−1
コンビニ
ファミリーマート JA平出店
直線距離:約68m
〒399-0422 長野県上伊那郡辰野町平出1507−1
薬局
よつば薬局
直線距離:約373m
〒399-0422 長野県上伊那郡辰野町平出2182−1
薬局
愛生館薬局
直線距離:約143m
〒399-0422 長野県上伊那郡辰野町平出1527

ウチコミ!