大家さんの直接募集だから仲介手数料無料です

宇都宮市新町テナントビル3階建て1戸(栃木県宇都宮市)

賃料:128,000円(管理費:2,000円) 敷金/礼金:敷金2ヶ月/礼金0 間取り:5LDK(106.00m2

  • ペット相談可
  • フリーレント
  • 特典
  • map
  • このお部屋は現在
    募集中
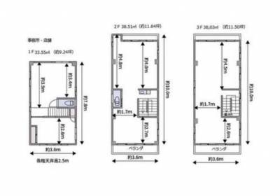
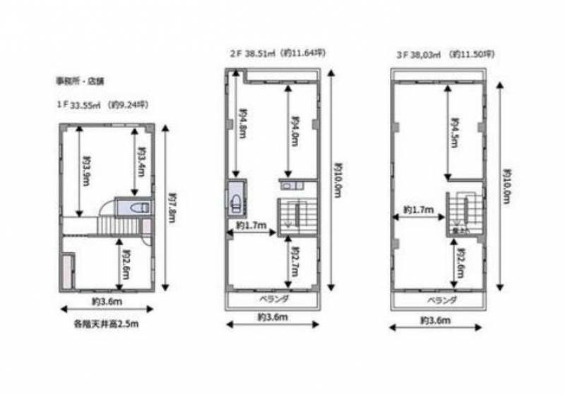
  • 間取り図
  • 新町ビル1階内観
  • 新町ビル1階内観②
  • 新町ビル2階内観
  • 新町ビル3階内観②
  • 新町ビル屋上

※ 写真に関しては現況優先となります

間取り図 新町ビル1階内観 新町ビル1階内観② 新町ビル2階内観 新町ビル3階内観② 新町ビル屋上

間取図を見る

この物件への内見・お問い合わせはこちら(無料の会員登録が必要です)

賃料 128,000円 管理費 2,000円 敷礼保 敷金2ヶ月 / 礼金0ヶ月 / 保証金0ヶ月
消費税 事務所・店舗でご利用になる場合、別途消費税13,000円が発生します。
所在地 〒3200831 栃木県宇都宮市新町1-2-6  map
間取り 5LDK 間取図を見る 専有面積 106.00m2 築年月 1988年9月築 建物構造 ビル/鉄骨造
交通 東武宇都宮線南宇都宮駅 徒歩13分
東武宇都宮線東武宇都宮駅 徒歩20分
入居可能時期 即入居可
初期費用
概算
10万円~20万円
※上記費用はあくまで概算になります。別途、入居日からの日割り家賃がかかる場合があります。
ウチコミ!特典
フリーレント1ヵ月付き!
更に!4月30日までにウチコミ!内で期間内に「契約」をした場合には以下の特典が付きます。
4月中の申し込み限定で、1ヶ月フリーレント付きとなります。

この物件の大家さん

大家さんからの物件ポイント

【平成通り沿いの事務所・テナント仕様物件。礼金なし・フリーレント付き!】駐車場2台あります
宇都宮市新町(南宇都宮駅徒歩13分)のところに、リノベーション済み賃貸物件出ました!
古家を900万かけてリノベーションし、事業用テナントに生まれ変わりました。
【外観】
屋上防水・外壁塗装済みでキレイな外観です。
1階は駐車場2台付きで近隣駐車場を借りれば店舗としても使い勝手がよさそうです。

【室内】
室内は一度解体後、鉄骨はあえて残してインダストリアル風にリノベーション済み。
鉄骨ビルですが、内装解体時に断熱材を入れているので冬はしっかり保温できます。

部屋の間取りは、お部屋が前後に分かれているため、サロンや事務所利用のほか、個別指導塾やパーソナルジム・コワーキング・シェアサロン・住居兼サロンなど小分けの部屋を使いたい方に最適です!
※2階のキッチンは残置物となりますので、不要の場合は廃棄OKです。
【屋上】
屋上も防水工事済み。
屋上は吹き抜けで景観◎なので、休憩スペースにも使えます!
屋根やソファを置いてカフェスペース、喫煙所などお好きな使い方で活用してください!

【ペット可】
もし飼う場合はペットもOKなので、お気軽にご相談ください。
※別途、ペット飼育覚書を記入いただきます。

【募集条件】
3階建てで間取りに若干クセがあるため、家賃13万円(税込)で広さの割にはリーズナブルだと思います。
退去時経費を考え、敷金2か月分頂戴しますが、礼金保証金は不要です。
なお、保証会社の利用を入居条件とさせていただきます。

この物件への内見・お問い合わせはこちら(無料の会員登録が必要です)

宇都宮市新町テナントビル 3階建て1戸の賃貸物件詳細情報

宇都宮市新町テナントビル 3階建て1戸の設備や条件など詳しい概要です

契約種別 定期借家契約 期間:3年
建物構造 ビル/鉄骨造
築年月 1988年9月築
所在階 / 階数 3階/ 地上3階 建
駐車場 駐車場あり(空きあり)
バイク置き場 バイク置き場あり(空きあり)
駐輪場 駐輪場あり(空きあり)
用途 事務所・店舗可
セキュリティ 免震構造
位置 1階の物件 / 2階以上 / 最上階 / 角部屋
条件 ペット相談可
部屋設備・サービス 都市ガス / 専用庭
その他 リフォーム・リノベーション済

 更新日:2026/04/08

この物件への内見・お問い合わせはこちら(無料の会員登録が必要です)

宇都宮市新町テナントビルの3階建て1戸以外の部屋を見る

部屋 賃料 管理費 敷/礼 間取り  
一棟貸し NEW
  • ペット相談可
  • フリーレント
  • 初期費用分割可
  • 壁紙プレゼント
  • インターネット無料
  • 駅近
  • 初期費用10万円以下
  • 楽器相談
  • セキュリティ
  • 家具・家電付き
  • 狭小物件
  • 特典
  • 動画
128,000円 2,000円 2ヶ月/0 5DK (107.00m2 詳細を見る

この物件の近隣の施設情報

学校
あゆみ保育園
直線距離:約339m
〒320-0862 栃木県宇都宮市西原2丁目1−24
薬局
晴れたす薬局 一条店
直線距離:約247m
〒320-0821 栃木県宇都宮市一条4丁目4−35 コーポ横山 B102
学校
宇都宮市立一条中学校
直線距離:約383m
〒320-0842 栃木県宇都宮市京町9−25
学校
栃木県立特別支援学校 宇都宮青葉高校
直線距離:約267m
〒320-8506 栃木県宇都宮市京町9−32
コンビニ
ファミリーマート 宇都宮西原三丁目店
直線距離:約59m
〒320-0862 栃木県宇都宮市西原3丁目3−番17
薬局
ワイアンドワイ薬局 宇都宮店
直線距離:約42m
〒320-0831 栃木県宇都宮市新町1丁目2−10
薬局
ピノキオ薬局花園店
直線距離:約216m
〒320-0843 栃木県宇都宮市花園町17−12 ヒロビル 1階
薬局
きむら鍼灸専用駐車場
直線距離:約289m
〒320-0843 栃木県宇都宮市花園町14−4 三雅ビル
学校
瀧の原塾
直線距離:約322m
〒320-0844 栃木県宇都宮市菊水町3

ウチコミ!