大家さんの直接募集だから仲介手数料無料です

コーポKO101号室(神奈川県秦野市)

賃料:27,000円(管理費:0円) 敷金/礼金:敷金0/礼金0 間取り:1DK(24.92m2

  • ペット相談可
  • 初期費用10万円以下
  • 楽器相談
  • map
  • このお部屋は現在
    募集中
  • 101号室(1階左)

※ 写真に関しては現況優先となります

101号室(1階左)

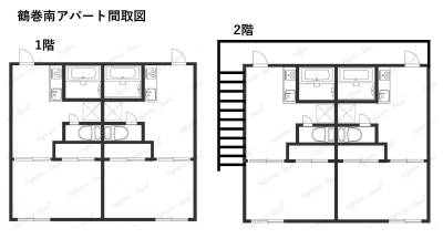
間取図を見る

この物件への内見・お問い合わせはこちら(無料の会員登録が必要です)

賃料 27,000円 管理費 0円 敷礼保 敷金0ヶ月 / 礼金0ヶ月 / 保証金0ヶ月
所在地 〒2570002 神奈川県秦野市鶴巻南2丁目3−29  map
間取り 1DK 間取図を見る 専有面積 24.92m2 築年月 1986年7月築 建物構造 アパート/軽量鉄骨造
交通 小田急線鶴巻温泉駅 徒歩9分
入居可能時期 2026年02月上旬
初期費用
概算
0~10万円
※上記費用はあくまで概算になります。別途、入居日からの日割り家賃がかかる場合があります。

この物件の大家さん

プロフィール

大家さんからの物件ポイント

申込につき現在募集停止中【生活保護可】【ペット可】【高齢者可】
当方ペット可賃貸を探すのに苦労した自身の経験から、
ペットを飼育している方や、賃貸が見つからない高齢者の方の受け皿になればと思い、
不動産オーナーを志した者です。

基本は相談ベースで話を進めていければと考えております。
写真はまだ何も手をつけていない状況です。
※2025/12/20 居間の畳→フローリングのリフォームが完了しました。
※キッチンリフォームを予定しています。

【賃料】
27000円
※ユニットバスリフォームご希望の場合+5000円
※クロス貼替ご希望の場合+1000円

【特徴】
・徒歩2分にユーコープ ミアクチーナ鶴巻店があります。
・駅まで徒歩9分
・新品エアコン設置

【条件】
指定の保証会社利用必須です。
株式会社COMPASS
初回保証料(家賃の50%、最低額は20,000円)、月々の継続保証料(月額1,600円)、および毎月の決済手数料(月額300円)
本物件だと、初回20,000円、月額1,900円(共益費)のご負担が発生します。
※保証に家財保険(相場¥20,000/2年)が含まれております。
※保証に24時間365日問合せコールセンター対応とトラブルの駆けつけサービスが含まれております。

【告知事項】2024年12月に孤独死が発生しております。
寒い時期に発生したこともあり、臭いもなく
現在は清掃とリフォームで綺麗になっております。

この物件への内見・お問い合わせはこちら(無料の会員登録が必要です)

コーポKO 101号室の賃貸物件詳細情報

コーポKO 101号室の設備や条件など詳しい概要です

契約種別 普通借家契約
建物構造 アパート/軽量鉄骨造
築年月 1986年7月築
所在階 / 階数 1階/ 地上2階 建
駐車場 駐車場あり(空きあり)2,000円/月
バイク置き場 バイク置き場あり(空きあり)
駐輪場 駐輪場あり(空きあり)
位置 1階の物件
条件 楽器相談 / DIY可 / 2人入居可 / 高齢者歓迎 / ペット相談可 / 保証人不要
キッチン ガスコンロ設置可
バス・トイレ・洗面 バス・トイレ別 / ユニットバス / 追い焚き / 浴室乾燥機
冷暖房 エアコン
部屋設備・サービス 照明器具付き / プロパンガス

 更新日:2026/02/25

この物件への内見・お問い合わせはこちら(無料の会員登録が必要です)

コーポKOの101号室以外の部屋を見る

部屋 賃料 管理費 敷/礼 間取り  
201号室 NEW
  • ペット相談可
  • フリーレント
  • 初期費用分割可
  • 壁紙プレゼント
  • インターネット無料
  • 駅近
  • 初期費用10万円以下
  • 楽器相談
  • セキュリティ
  • 家具・家電付き
  • 狭小物件
  • 特典
  • 動画
30,000円 0円 0/0 1DK (24.92m2 詳細を見る

この物件の近隣の施設情報

学校
プリモピアノ教室
直線距離:約248m
〒257-0002 神奈川県秦野市鶴巻南4丁目25
学校
つるまき幼稚園
直線距離:約135m
〒257-0002 神奈川県秦野市鶴巻南4丁目22−26
学校
つくし保育園
直線距離:約321m
〒257-0002 神奈川県秦野市鶴巻南1丁目1−6
学校
東日本進学会鶴巻校
直線距離:約243m
〒257-0002 神奈川県秦野市鶴巻南4丁目19−11
学校
毎日個別塾5-Days鶴巻校
直線距離:約100m
〒257-0002 神奈川県秦野市鶴巻南2丁目2−30 パーシモン湘南 104
学校
個別指導エルフ学院 鶴巻スクール
直線距離:約100m
〒257-0002 神奈川県秦野市鶴巻南2丁目2−30
学校
QUREO(キュレオ)プログラミング教室 ECCの個別指導塾ベストワン 鶴巻校
直線距離:約198m
〒257-0002 神奈川県秦野市鶴巻南1丁目7−7
コンビニ
セブン-イレブン 秦野鶴巻南2丁目店
直線距離:約230m
〒257-0002 神奈川県秦野市鶴巻南2丁目11−6
学校
QUREO(キュレオ)プログラミング教室 毎日個別塾5-Days 鶴巻校
直線距離:約100m
〒257-0002 神奈川県秦野市鶴巻南2丁目2−30 パーシモン湘南 104

ウチコミ!