大家さんの直接募集だから仲介手数料無料です

昭和尼崎ビル1001(兵庫県尼崎市)

賃料:600,000円(管理費:15,000円) 敷金/礼金:敷金0/礼金1ヶ月 間取り:1R(209.87m2

  • フリーレント
  • インターネット無料
  • map
  • このお部屋は現在
    募集中
  • 2号線沿いのテナントビル
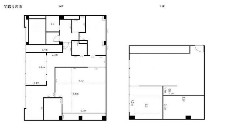
  • 10階11階の室内で螺旋階段で行き来できます。
  • テナント駐車場あり
  • 1F共有スペース

※ 写真に関しては現況優先となります

2号線沿いのテナントビル 10階11階の室内で螺旋階段で行き来できます。 テナント駐車場あり 1F共有スペース

間取図を見る

この物件への内見・お問い合わせはこちら(無料の会員登録が必要です)

賃料 600,000円 管理費 15,000円 敷礼保 敷金0ヶ月 / 礼金1ヶ月 / 保証金1ヶ月
消費税 事務所・店舗でご利用になる場合、別途消費税61,500円が発生します。
所在地 〒6600892 兵庫県尼崎市東難波町5丁目2-17  map
間取り 1R 間取図を見る 専有面積 209.87m2 築年月 1989年5月築 建物構造 ビル/鉄骨鉄筋コンクリート造
交通 阪神本線尼崎駅 徒歩12分
阪神本線出屋敷駅 徒歩13分
入居可能時期 即入居可
初期費用
概算
20万円~
※上記費用はあくまで概算になります。別途、入居日からの日割り家賃がかかる場合があります。
ウチコミ!特典
フリーレント付き!
インターネット無料!

この物件の大家さん

大家さんからの物件ポイント

★2号線沿いで視認性抜群★美容院やクリニックに✨軽飲食も可能!事務所や店舗に✨
尼崎駅より徒歩圏内✨
10階11階の最上階のお部屋です!
中には、おしゃれな階段があります。
電話線や光ケーブルがございますので、入居して即利用できます。
広々給湯室もあり大き目の冷蔵庫もおけます。
近隣に飲食店舗多く、ランチに困りません!
エレベーターで直接11階に行くことも可能です。
駐車場の空きありのため通勤もラクラクです★
1階には、共有スペースとして、テーブルや椅子を設置してますので、ちょっとした商談や飲食にもご利用いただけます。
美容院やクリニック、事務所店舗にピッタリ✨

この物件への内見・お問い合わせはこちら(無料の会員登録が必要です)

昭和尼崎ビル 1001の賃貸物件詳細情報

昭和尼崎ビル 1001の設備や条件など詳しい概要です

契約種別 普通借家契約
建物構造 ビル/鉄骨鉄筋コンクリート造
築年月 1989年5月築
所在階 / 階数 10階/ 地上11階 地下2階 建
駐車場 駐車場あり(空きあり)16,500円/月
バイク置き場 バイク置き場なし
駐輪場 駐輪場あり(空きあり)
用途 事務所・店舗
セキュリティ 防犯カメラ / エレベーター
建物設備 駐車場2台可能
位置 最上階
キッチン ガスコンロ設置可
放送・通信 光回線

 更新日:2026/02/01

この物件への内見・お問い合わせはこちら(無料の会員登録が必要です)

昭和尼崎ビルの1001以外の部屋を見る

部屋 賃料 管理費 敷/礼 間取り  
407
  • ペット相談可
  • フリーレント
  • 初期費用分割可
  • 壁紙プレゼント
  • インターネット無料
  • 駅近
  • 初期費用10万円以下
  • 楽器相談
  • セキュリティ
  • 家具・家電付き
  • 狭小物件
  • 特典
  • 動画
50,000円 15,000円 0/1ヶ月 1R (16.36m2 詳細を見る
501
  • ペット相談可
  • フリーレント
  • 初期費用分割可
  • 壁紙プレゼント
  • インターネット無料
  • 駅近
  • 初期費用10万円以下
  • 楽器相談
  • セキュリティ
  • 家具・家電付き
  • 狭小物件
  • 特典
  • 動画
320,000円 15,000円 0/1ヶ月 1R (128.18m2 詳細を見る
602
  • ペット相談可
  • フリーレント
  • 初期費用分割可
  • 壁紙プレゼント
  • インターネット無料
  • 駅近
  • 初期費用10万円以下
  • 楽器相談
  • セキュリティ
  • 家具・家電付き
  • 狭小物件
  • 特典
  • 動画
120,000円 15,000円 0/1ヶ月 1R (40.34m2 詳細を見る

この物件の近隣の施設情報

学校
若葉保育園
直線距離:約348m
〒660-0892 兵庫県尼崎市東難波町4丁目7−3
病院
近藤病院
直線距離:約296m
〒660-0881 兵庫県尼崎市昭和通4丁目114番地
スーパー
コノミヤ 尼崎店
直線距離:約330m
〒660-0893 兵庫県尼崎市西難波町4丁目5−26 3階
学校
尼崎市立難波小学校
直線距離:約157m
〒660-0892 兵庫県尼崎市東難波町4丁目3−40
スーパー
業務スーパー 三和店
直線距離:約233m
〒660-0885 兵庫県尼崎市神田中通6丁目6−204−3
コンビニ
ファミリーマート 昭和通四丁目店
直線距離:約267m
〒660-0892 兵庫県尼崎市東難波町5丁目8−178
コンビニ
ファミリーマート 尼崎東難波町店
直線距離:約72m
〒660-0892 兵庫県尼崎市東難波町5丁目2−1
薬局
スギ薬局 阪神尼崎店
直線距離:約265m
〒660-0885 兵庫県尼崎市神田中通4丁目157 スギ薬局阪神尼崎店
コンビニ
ローソン 尼崎神田北通七丁目店
直線距離:約315m
〒660-0883 兵庫県尼崎市神田北通7丁目196
コンビニ
セブン-イレブン 尼崎神田南通3丁目店
直線距離:約281m
〒660-0885 兵庫県尼崎市神田南通3丁目57−3
スーパー
くらし快援隊
直線距離:約318m
〒660-0884 兵庫県尼崎市神田中通4丁目87−3
コンビニ
セブン-イレブン 尼崎昭和通5丁目店
直線距離:約184m
〒660-0881 兵庫県尼崎市昭和通5丁目158
病院
岡田病院
直線距離:約289m
〒660-0893 兵庫県尼崎市西難波町4丁目5−18
コンビニ
セブン-イレブン 尼崎昭和通7丁目店
直線距離:約155m
〒660-0881 兵庫県尼崎市昭和通7丁目241−3
スーパー
シャンティかんだ
直線距離:約212m
〒660-0884 兵庫県尼崎市神田中通5丁目193
スーパー
TKO物産
直線距離:約198m
〒660-0884 兵庫県尼崎市神田中通5丁目194
薬局
エコ薬局尼崎店
直線距離:約344m
〒660-0893 兵庫県尼崎市西難波町4丁目5−25
学校
夢みKIDS
直線距離:約201m
〒660-0882 兵庫県尼崎市昭和南通5丁目90−1 リヴァージュ尼崎 1F
スーパー
小西青果(株) 中央店
直線距離:約380m
〒660-0871 兵庫県尼崎市神田中通4丁目154
学校
天才キッズクラブ陽だまりの家尼崎園
直線距離:約181m
〒660-0883 兵庫県尼崎市神田北通5丁目136−6

ウチコミ!