大家さんの直接募集だから仲介手数料無料です

ハラダビル3F(兵庫県尼崎市)

賃料:67,000円(管理費:3,000円) 敷金/礼金:敷金1ヶ月/礼金2ヶ月 間取り:1R(24.39m2

  • map
  • このお部屋は現在
    募集中

※ 写真に関しては現況優先となります

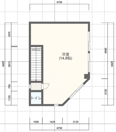
間取図を見る

この物件への内見・お問い合わせはこちら(無料の会員登録が必要です)

賃料 67,000円 管理費 3,000円 敷礼保 敷金1ヶ月 / 礼金2ヶ月 / 保証金0.5ヶ月
所在地 〒6600052 兵庫県尼崎市七松町3-13-14  map
間取り 1R 間取図を見る 専有面積 24.39m2 築年月 1985年10月築 建物構造 ビル/鉄骨造
交通 JR神戸線(大阪~神戸)立花駅 徒歩10分
入居可能時期 即入居可
初期費用
概算
10万円~20万円
※上記費用はあくまで概算になります。別途、入居日からの日割り家賃がかかる場合があります。

この物件の大家さん

大家さんからの物件ポイント

尼崎JR立花駅徒歩10分 市役所隣の好立地テナント
ウチコミ限定㊙️尼崎市JR立花駅から徒歩10分
尼崎市役所の間隣に好立地テナントが出ました????

家賃合計 70,000円
 ・賃料 67,000円
 ・共益費 3,000円

初期費用
 ・敷金  家賃1ヶ月
 ・礼金  家賃2ヶ月
 ・保証料  家賃半月〜

人気物件につき、お早めにお問合せください✋
生活保護、外国籍等、入居審査に関しご心配な方もお気軽にご相談ください♪


✅物件詳細
・物件名:ハラダビル
・住所:尼崎市七松町3丁目13-14-3F
・床延:24.39㎡ ワンルーム
・事務所仕様

※保証会社もしくは保証人が必須です

この物件への内見・お問い合わせはこちら(無料の会員登録が必要です)

ハラダビル 3Fの賃貸物件詳細情報

ハラダビル 3Fの設備や条件など詳しい概要です

契約種別 普通借家契約
建物構造 ビル/鉄骨造
築年月 1985年10月築
所在階 / 階数 3階/ 地上3階 建
駐車場 駐車場なし
バイク置き場 バイク置き場なし
駐輪場 駐輪場なし
用途 事務所・店舗
位置 2階以上 / 最上階 / 角部屋
冷暖房 エアコン
部屋設備・サービス 照明器具付き / 都市ガス
その他 リフォーム・リノベーション済

 更新日:2025/12/23

この物件への内見・お問い合わせはこちら(無料の会員登録が必要です)

この物件の近隣の施設情報

学校
尼崎市立中央中学校
直線距離:約314m
〒660-0051 兵庫県尼崎市東七松町2丁目5−67
学校
尼崎市立日新中学校
直線距離:約363m
〒660-0051 兵庫県尼崎市東七松町2丁目1−44
学校
尼崎市立難波の梅小学校
直線距離:約287m
〒660-0893 兵庫県尼崎市西難波町6丁目14−57
コンビニ
セブン-イレブン 尼崎西難波6丁目店
直線距離:約257m
〒660-0893 兵庫県尼崎市西難波町6丁目2−27
学校
尼崎市立七松小学校
直線距離:約380m
〒660-0053 兵庫県尼崎市南七松町1丁目4−49
コンビニ
ローソン 尼崎立花町一丁目店
直線距離:約321m
〒661-0025 兵庫県尼崎市立花町1丁目24−31
コンビニ
ローソン 尼崎南七松町一丁目店
直線距離:約390m
〒660-0053 兵庫県尼崎市南七松町1丁目3−10
学校
個別指導キャンパス 立花七松校
直線距離:約180m
〒660-0052 兵庫県尼崎市七松町3丁目3−15 宮本ビル
薬局
ロング薬局 立花店
直線距離:約127m
〒660-0051 兵庫県尼崎市東七松町1丁目10−18
薬局
浅尾調剤薬局
直線距離:約246m
〒660-0052 兵庫県尼崎市七松町3丁目2−19 ASビル
学校
ITTO個別指導学院 尼崎七松校
直線距離:約207m
〒660-0052 兵庫県尼崎市七松町3丁目3−11 GSハイム立花 1F
学校
レンタルサロン*inipi(イニピ)尼崎院
直線距離:約256m
〒660-0052 兵庫県尼崎市七松町2丁目20−8 木造2 階建南側 2階
学校
さない塾 尼崎校
直線距離:約194m
〒660-0893 兵庫県尼崎市西難波町1丁目3−6 シティブリッジ西難波
病院
モリモト医院
直線距離:約71m
〒660-0052 兵庫県尼崎市七松町3丁目17−10
学校
21世紀塾尼崎中央校
直線距離:約191m
〒660-0893 兵庫県尼崎市西難波町1丁目3−6 シティブリッジ西難波 2F ビル
学校
京大教研尼崎学習塾
直線距離:約323m
〒660-0893 兵庫県尼崎市西難波町6丁目3
学校
Future Bright株式会社
直線距離:約206m
〒660-0052 兵庫県尼崎市七松町3丁目3−11
学校
認知症介護スクール 夢みケアカレッジ
直線距離:約207m
〒660-0052 兵庫県尼崎市七松町3丁目3−8
学校
夢野進学セミナー
直線距離:約207m
〒660-0052 兵庫県尼崎市七松町3丁目3−11 GSハイム立花
病院
休日夜間急病診療所建設中
直線距離:約217m
〒660-0893 兵庫県尼崎市西難波町1丁目1

ウチコミ!