大家さんの直接募集だから仲介手数料無料です

小樽市オタモイ2丁目戸建て(北海道小樽市)

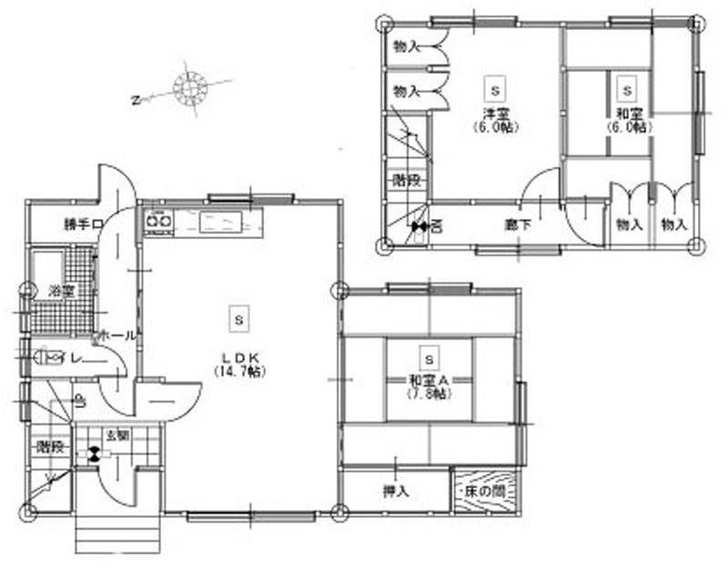
賃料:55,000円(管理費:5,000円) 敷金/礼金:敷金1ヶ月/礼金1ヶ月 間取り:3LDK(83.12m2

  • ペット相談可
  • フリーレント
  • インターネット無料
  • 初期費用10万円以下
  • 家具・家電付き
  • map
  • このお部屋は現在
    募集中
  • 高台で見晴らしのいいBBQを楽しめる庭付き

※ 写真に関しては現況優先となります

高台で見晴らしのいいBBQを楽しめる庭付き

間取図を見る

この物件への内見・お問い合わせはこちら(無料の会員登録が必要です)

賃料 55,000円 管理費 5,000円 敷礼保 敷金1ヶ月 / 礼金1ヶ月 / 保証金0ヶ月
所在地 〒0482671 北海道小樽市オタモイ二丁目1-26  map
間取り 3LDK 間取図を見る 専有面積 83.12m2 築年月 1980年1月築 建物構造 戸建/木造
交通 JR函館本線(長万部~小樽)小樽駅 バス15分 バス停下車 徒歩10分
入居可能時期 即入居可
初期費用
概算
0~10万円
※上記費用はあくまで概算になります。別途、入居日からの日割り家賃がかかる場合があります。
ウチコミ!特典
契約当月分 + 2ヵ月のフリーレント付き!
インターネット無料!

この物件の大家さん

大家さんからの物件ポイント

家具家電付きでそのまま生活可能、インターネット無料、Wifi設備付き、ペットOK、広々庭付き、駐車場2台
■駐車場で2台分(縦列駐車となります)

■家具付き
一階リビング・・・ソファ:1、ローテーブル:1、ワークデスク:2、テレビ:1、小型丸テーブル:2、ソファチェア:2、ワークチェア:2
二階寝室・・・ベッド:1(クイーンサイズ)

■家電付き
テレビ:1、小型冷蔵庫:1、電子レンジ:1、IH二口コンロ:1、洗濯機:1

■その他、すぐに生活できる設備を備えています。
エアコン:2、石油ストーブ:1(換気不要)、インターネット無料(光回線契約済)、Wifiルーター設置済、ペットOK、広々庭付き(BBQスペース、ガーデンテーブル、ガーデンチェア)

※無料インターネット不要の場合・・・管理費・共益費:無料
※家具家電無しの場い・・・家賃:48000円

この物件への内見・お問い合わせはこちら(無料の会員登録が必要です)

小樽市オタモイ2丁目戸建て の賃貸物件詳細情報

小樽市オタモイ2丁目戸建て の設備や条件など詳しい概要です

契約種別 普通借家契約
建物構造 戸建/木造
築年月 1980年1月築
所在階 / 階数 地上2階 建
駐車場 駐車場あり(空きあり)
バイク置き場 バイク置き場あり(空きあり)
駐輪場 駐輪場あり(空きあり)
建物設備 駐車場2台可能
位置 1階の物件
条件 DIY可 / ペット相談可
キッチン ガスコンロ設置可 / IHコンロ / システムキッチン
バス・トイレ・洗面 バス・トイレ別 / ユニットバス / 温水洗浄便座 / 独立洗面台
冷暖房 石油暖房 / エアコン
部屋設備・サービス クローゼット / 照明器具付き / プロパンガス / フローリング / 専用庭 / 室内洗濯機置場
放送・通信 光回線
その他 リフォーム・リノベーション済 / 家具・家電付

 更新日:2025/06/16

この物件への内見・お問い合わせはこちら(無料の会員登録が必要です)

この物件の近隣の施設情報

学校
小樽市立長橋中学校
直線距離:約329m
〒047-0036 北海道小樽市長橋4丁目16−1
コンビニ
ローソン 小樽オタモイ一丁目店
直線距離:約323m
〒048-2671 北海道小樽市オタモイ1丁目5−22
学校
学習塾アンフィニ
直線距離:約303m
〒048-2671 北海道小樽市オタモイ1丁目3−17
学校
日本航空高校通信制課程 小樽学習支援センター
直線距離:約305m
〒048-2671 北海道小樽市オタモイ1丁目3−17

ウチコミ!